ce

3.1  基本体的投影及尺寸标注  

当前位置:机械制图第三章 基本体及其表面交线 》3.1  基本体的投影及尺寸标注 3

上页

返回目录

 

2.  圆锥表面上点的投影

作图方法有两种:

1)辅助线法  如图36 a)所示,过锥顶SM作一直线SA,与底面交于点A。点M的各个投影必在此SA的相应投影上。在图36b)中过m sa′,然后求出其水平投影sa。由于点M属于直线SA,根据点在直线上的从属性质可知m必在sa上,求出水平投影m,再根据mm 可求出m″。

 

2)辅助圆法  如图37a)所示,过圆锥面上点M作一垂直于圆锥轴线的辅助圆,点M的各个投影必在此辅助圆的相应投影上。在图37b)中过m 作水平线a b′,此为辅助圆的正面投影积聚线。辅助圆的水平投影为一直径等于a b 的圆,圆心为s,由m 向下引垂线与此圆相交,且根据点M的可见性,即可求出 m 。然后再由m m可求出m″。


★3.1.2 曲面立体的投影及表面取点

★3.1.2.3  圆球     

1.  圆球的投影      

圆球的表面是球面,如图3-8(a)

所示,圆球面可看作是一条圆母线 绕通过其圆心的轴线回转而成。

动画演示


 

如图3-8(b)所示为圆球的立体图、如图3-8(c)所示为圆球的投影。圆球在三个投影面上的投影都是直径相等的圆,但这三个圆分别表示三个不同方向的圆球面轮廓素线的投影。正面投影的圆是平行于V面的圆素线A(它是前面可见半球与后面不可见半球的分界线)的投影。与此类似,侧面投影的圆是平行于W面的圆素线C的投影;水平投影的圆是平行于H面的圆素线B的投影。这三条圆素线的其他两面投影,都与相应圆的中心线重合,不应画出。

2. 圆球表面上点的投影
采用辅助圆法,即过该点在球面上作一个平行于任一投影面的辅助圆。过点M作一平行于正面的辅助圆,它的水平投影为过m的直线ab,正面投影为直径等于ab长度的圆。自m向上引垂线,在正面投影上与辅助圆相交于两点。又由于m可见,故点M必在上半个圆周上,据此可确定位置偏上的点即为m′,再由m、m′ 可求出m″。如图3-9(b)所示

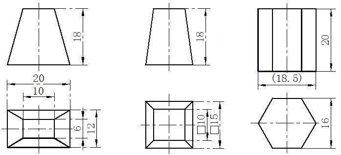
★3.1.3.1 平面立体的尺寸标注
平面立体一般标注长、宽、高三个方向的尺寸,如图3-10所示。其中正方形的尺寸可采用如图3-10(f)所示的形式注出,即在边长尺寸数字前加注“□”符号。图3-10(d)、(g)中加“()”的尺寸称为参考尺寸。

★3.1.3.2 曲面立体的尺寸标注
圆柱和圆锥应注出底圆直径和高度尺寸,圆锥台还应加注顶圆的直径。直径尺寸应在其数字前加注符号“φ”,一般注在非圆视图上。这种标注形式用一个视图就能确定其形状和大小,其他视图就可省略,如图3-11(a)、(b)、(c)所示。标注圆球的直径和半径时,应分别在“φ、R”前加注符号“S”,如图3-11(d)、(e)所示。

当前位置:机械制图第三章 基本体及其表面交线 》3.1  基本体的投影及尺寸标注 3

上页

返回目录

 

联系我们:lgg6388@126.com